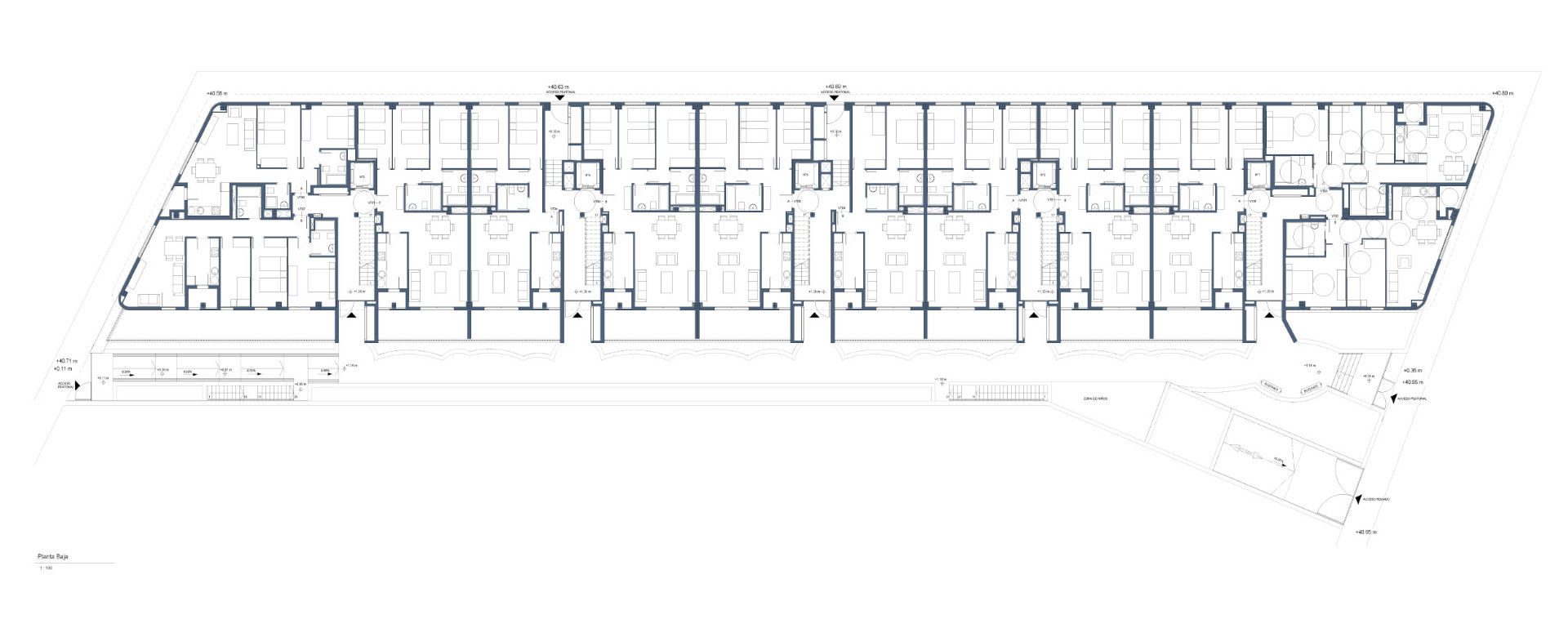
Dos Hermanas Valme

60 VIVIENDAS, GARAJES Y TRASTEROS

PARCELA B, AP 101 “ANTIGUO HIPERVALME”, DOS HERMANAS. SEVILLA
Cliente: AEDAS HOMES

Valme
Valme
Valme
Valme